15 декабря пройдет аукцион на право проведения реновации по Победе и Александровича
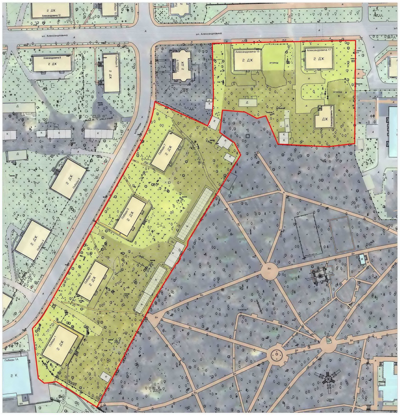
Комитет по управлению муниципальным имуществом сообщает, что 15 декабря в 14:00 в зале заседаний на 3-м этаже администрации Сарова пройдет аукцион на право заключение договора развития застроенной территории, находящейся в районе домов № 15,17 и 17А по ул. Александровича и № 1, 3, 5, 7 по ул. Победы. В территорию «реновации» входит ряд гаражей и хозяйственных построек.
Участник, предложивший наибольшую сумму, получит право построить на этом месте жилые дома не выше 9 этажей. Важно отметить, что количество этих домов и их этажность победитель будет определять самостоятельно, но проект должен учитывать потребность населения в парковках, социально-культурных объектах
Напомним, что обязательным условием для получения разрешения на строительство является наличие у застройщика письменных договоренностей со всеми без исключения собственниками квартир в вышеуказанных домах о сумме выкупа или согласии на переезд в альтернативное жилье.
Начальная цена аукциона 13,8 миллиона рублей, шаг аукциона — 287 тысяч рублей, величина задатка — 6,9 миллиона рублей,
Прием заявок завершается 10 декабря в 15:00, более подробную информацию можно получить по телефону 9−77−37 или 9−90−80.
По итогам прошлого аукциона договор на развитие территории не был заключен по причине отказа победителем внести необходимые денежные средства в бюджет города Сарова.








шум-гам
и это, парк - прощай? Неужто
не зацепят стройкой?