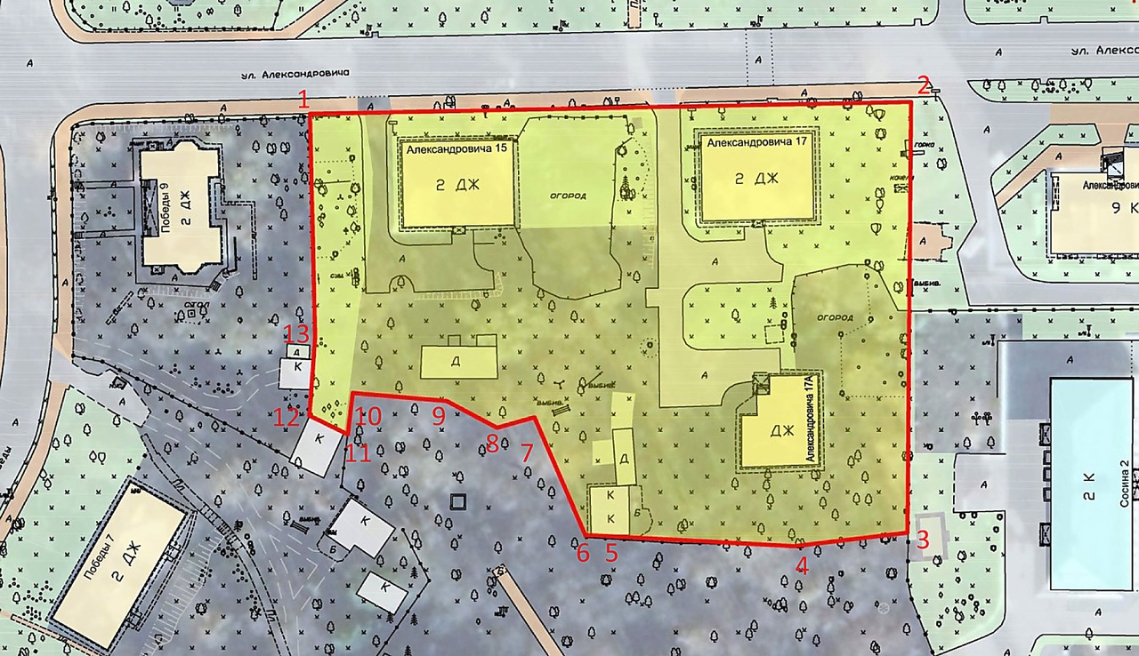
На улице Александровича «воткнут» девятиэтажку
11 августа 2020 г. 17:14 |
Аукцион на развитие застроенных территорий выиграл Олег Сидорук, который предложил 29,43 млн рублей. В рамках торгов 3 участника сделали 581 шаг аукциона, подняв цену аукциона почти в 30 раз с 1 млн рублей.
Победитель получил право организовать на месте домов № 15, 17 и 17а по ул. Александровича строительство 1−2-х подъездного дома до 9 этажей. Предварительно ему нужно будет договориться со всеми собственниками об условиях выкупа их жилья.




_small.jpg)



Коля
А если половина откажется?